新築戸建
姫路市香寺町溝口8号地
おすすめポイント
駅近物件です♪
前面道路は公園に隣接しています!
分譲地内にごみ捨て場があるので、朝のごみ捨てが楽!
| 販売価格 | 3,480 万円 |
|---|---|
| 所在地 | 姫路市香寺町溝口381-1他 |
| 交通 | JR播但線「溝口」駅まで徒歩2分 |
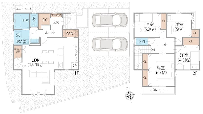
| 間取り | 4LDK |
| 構造 | 木造2階建 |
| 面積 | 土地:152.35㎡(46.08坪) 建物:104.33m2(31.55坪)(登記) |
| 取引態様 | 仲介 |
| 設備配管 | 設備:公営水道、オール電化 |
| 土地権利 | 所有権 |
| 接道 | 公道 道路幅員6.0m |
| 都市計画 | 市街化区域 |
| 備考 | 長期優良住宅認定物件(建物保証最長60年・設備保証10年) 太陽光発電システム3.96kw搭載 建築確認番号:第R07確認建築近確0000795号 ■中寺小学校 1,705m(徒歩22分) ■香寺中学校 1,170m(徒歩15分) |




